Staveništní rozvaděč SK 53 1074 E.03
zdarma








Staveništní rozvaděč SK 53 1074 E.03
disponuje dobrým poměrem cena/výkon od prověřeného výrobce N.G. Elektro. Další informace k produktu naleznete níže.
e-shop: skladem (1 ks), doručíme: středa 24.12.
11 644,39 Kč
/ 1 ks9 623,46 Kč bez DPH
Ceny zde uvedené jsou platné pouze pro nákup na e-shopu a mohou se lišit od cen na pobočkách.
Objednací kód1788420
ZnačkaN.G. Elektro
Dodavatelský kódSK 53 1074 E.03
EAN8595169555413
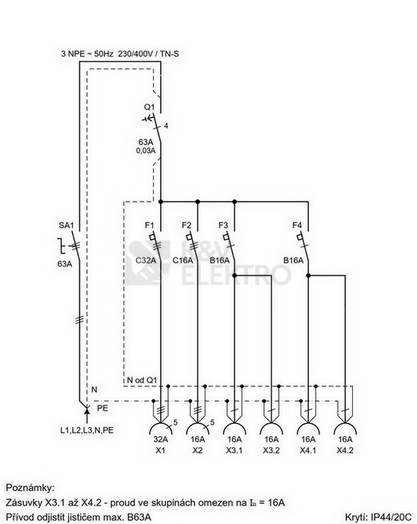
Složení zásuvek:
- 1x zás. 32A/400V/5p
- 1x zás. 16A/400V/5p
- 4x zás. 230V s ochr. kolíkem (česká)
Jistění:
- 1x jistič 32A/3P/B 10 kA
- 1x jistič 16A/3P/C 10 kA
- 2x jistič 16A/1P/C 10 kA
- Proudový chránič 1x FI 63A/4P/30mA 10kA
Hlavní přednosti:
- připraveno k okamžitému použití
- přístroje se zkratovou odolností 10kA
- vysoce odolný a velmi stabilní podstavec
- rozměr: 380 x 1010 x 420mm
- pouzdra kombinací z nárazuvzdorného a UV stabilního polykarbonátu
- odolné vůči stárnutí a vysokým teplotám, chemicky odolné
- bezhalogenní, samozhášivé
- uzamykatelný vačkový vypínač
- zásuvky s bezšroubovou technologií QUICK CONNECT
- dodatečně je možné osadit elektroměr pro podružné měření
Další údaje:
- DIN lišty: 16 (2 řady po 8) modulů
- Počet okének: 1
- Podstavec: ocelový, žárově zinkovaný
- Provedení: Staveništní
- Použití: Přenosné samostatně stojící
- Madlo: NE
- Stupeň ochrany krytem: IP44
- Jmenovitý proud: 63A
- Jmenovité napětí: 400V
- Teplotní rozsah použití: -25°C + 40°C
- V souladu s normou ČSN EN 61439-3
- Vývodka: 1x MV-40 IP68
- Max. průměr vodiče: 22-32mm
- Vačkový vypínač: 1x 63A/3P
Značka
Parametry
Zásuvka CEE - 16 A:1x16A5p400V
Zásuvka CEE - 32 A:1x32A5p400V
Zásuvka CEE - 63 A:Bez
Zásuvka CEE - 125 A:Bez
Počet zásuvek 230V:4
Jištění:Jistič
Proudový chránič:Proudový chránič s lFN 0,03 A (standard)
Počet jističů vedení:4
Materiál skříně:Plast
Napájení/možnost připojení:2 vedení (okružní vedení/k prosmyčkování)
Provedení:Přenosné
Krytí (IP):IP44
Barva:Šedá
Výška:1 009 mm
Šířka:381 mm
Hloubka/výška:421 mm

