LED podhledové svítidlo LEDVANCE Slim Round 155mm 12W/4000K neutrální bílá AKCE 5+1








Ceny zde uvedené jsou platné pouze pro nákup na e-shopu a mohou se lišit od cen na pobočkách.
Vestavné podhledové svítidlo LEDVANCE Slim Round s montážním průměrem 155 mm je připravené pro stropní instalaci a dodává neutrální bílou barvu světla 4 000 K. Integrovaný zdroj s příkonem 12 W a světelným tokem 1 020 lm zajišťuje vyvážené přímé osvětlení pro běžné podhledy.
Specifikace led podhledové svítidlo LEDVANCE Slim Round 155mm 12W/4000K neutrální bílá AKCE 5+1
Toto svítidlo je určeno pro vestavbu do stropních konstrukcí, kde umožňuje stropní upevnění a vytváří přímé osvětlení se symetrickým rozložením svítivosti. Díky širšímu vyzařování s úhlem paprsku nad 80° poskytuje příjemné rozptýlené světlo pro celkové prosvětlení místnosti.
Jádro tvoří LED nevýměnná se stabilním napájením AC na 230 V. Dodává se se světelným zdrojem a také s provozním přístrojem, konkrétně LED ovládací zařízení řízeno proudem. Z hlediska ovládání je řešeno bez stmívání a neobsahuje pohybové čidlo ani světelný senzor, což zjednodušuje zapojení i provoz.
Světelný výkon odpovídá toku 1 020 lm v odstínu bílá s teplotou chromatičnosti 4 000 K. Podání barev spadá do třídy Ra 80–89, takže barvy působí přirozeně a vyváženě v široké škále interiérů, kde je vhodná neutrální bílá.
Konstrukce kombinuje plastovou skříň v bílé barvě a opálový plastový kryt typu difuzorová čočka/optika/panel, který zjemňuje světelný tok. Proti prachu a dotyku je chráněno stupněm IP20, mechanická odolnost odpovídá třídě IK03 a elektrická bezpečnost spadá do třídy ochrany II. Provoz je možný v teplotním rozsahu -20 až 50 °C.
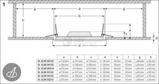
Rozměrově svítidlo nabízí vnější průměr 169 mm, kompaktní výšku 50 mm a stejné vestavné zapuštění 50 mm. Do připraveného otvoru pro podhled se instaluje při montážním průměru 155 mm, což zajišťuje čisté a zapuštěné osazení v rovině stropu.
Napojení do sítě je řešeno koncovým zapojením přes bezšroubovou svorku a 2 póly, takže připojení vedení je rychlé a přehledné. Svítidlo pracuje s maximálním integrovaným příkonem 12 W, přičemž je určeno pro 1 světelný zdroj a nevyužívá žádnou objímku ani patici.
Z hlediska montážních možností je řešení bez možnosti nastavení, není určeno pro montáž na stěnu, zavěšení, podlahové či lištové systémy, a rovněž není koncipováno pro upínací montáž ani pro izolované stropy s protipožární ochranou. Díky tomu cílí na standardní vestavby v běžných podhledech.
Shrnutí a doporučení produktu
Designově čisté kruhové provedení v bílé barvě se snadno začlení do stropu a zajistí příjemně rozptýlené celkové osvětlení. Jednoduché napojení bez šroubování a integrované řešení bez doplňkových modulů urychlí montáž i uvedení do provozu. Neutrální barevný tón světla se hodí všude tam, kde je cílem vyvážená atmosféra bez barevných posunů.
Výhodné balení uvedené v názvu je příležitostí, jak sjednotit osvětlení více místností a současně snížit pořizovací náklady. Pokud plánujete nasadit stejný vzhled a charakter světla ve větším počtu stropních podhledů, tato varianta dává smysl také z pohledu snadné údržby a jednotného výsledku.
Pro další výběr obdobných řešení a akčních balení stejného výrobce doporučujeme navštívit kategorii VÝHODNÁ BALENÍ LEDVANCE, kde snadno porovnáte typy a provedení podle plánované instalace.

